Skip to main content. Skip to navigation. Skip to search. Skip to Region Selector, the current region is United States. Skip to Language Selector, the current language is English (United States).
Cook chill system plan C: 5,000 meals pe...

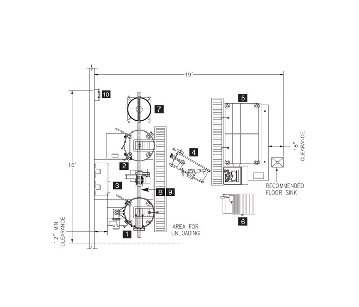
Cook chill system plan C: 5,000 meals per day (sample A)

Volume of food varies from one operation to the next. Please contact Cleveland Range Cook Chill for assistance

COOK CHILL PRODUCTION AREA



 



1. HA-MKDL-100-CC, 100 gallon stationary horizontal agitator mixing kettle is by far the most efficient kettle for cooking while mixing both heavy and delicate ingredients and is used for hands-free mixing of kettle items while allowing staff to multi-task. The operator can easily set the temperature of the kettle and speed of the kettle agitators, then walk away to do other tasks while the recipe is cooking and being stirred. Consider a tilting kettle model HA-MKDL-60-CC-T for increased versatility. Many prefer the ease of working with a tilting kettle for loading ingredients, cleaning, and for producing productions that cannot be pumped.



 



2. P-KDL-100-CC, 100 gallon Pasta Kettle is used for cooking, rinsing, cooling and draining pasta. It can also be used for stock bones or other foods that need to be cooked and strained. Standard features include overflow drains at the top of the kettle for flushing cool water into hot pasta, water injections system, water meter, and faucet.



 



3. P/HA-DE-CC, Combination Dual Kettle Control Panel for both the Horizontal Agitator and Pasta Kettles, can be located within inches or several feet from the kettles. Located in one cabinet, each Control Panel contains separate controls for automatic or manual cooking and cooling, digital temperature and water read outs, chart recorder for recording the temperature of the product during a 24 hour period of food production, water meter controls including agitator speed for the Horizontal Agitator Kettle and water injection and other features for the Pasta Kettlel.



 



4. MFS, Metering Filling Station is used for quickly pumping hot or cold products out of the kettle into bags or, when necessary, steamtable pans. Order Casing clipper to close bags.



 



5. TCCT-120, Combination Tumble Chiller and Cook Tank has 2 functions. It can be used for chilling up to 120 gallons of bagged kettle products in an average of 45 minutes. This can also be used as a Cook Tank and will hold approximately 750 pounds of vacuum packaged meats or other products.



 



6. CVW, Vacuum Clipper (new model number CVW. Also see model CV-E-8065) is used for vacuum bagging cook tank products prior to cooking. Optional casters allow operator to move vacuum clipper when not in use.



 



7. PB-K-100 and PB-D-100, 100 gallon Pasta Basket and Dolly. Please note that the kettle agitator arm can be removed so that the kettle can be used for pasta cooking. The Pasta Basket is perforated for easy cooking and draining of pasta stock bones, beans or other items. The Basket can be hoisted out of the kettle and into the Pasta Basket Dolly for transporting the Basket.



 



8. CH-E-1005-M, half ton motorized hoist for lifting the Pasta Basket. Please ask for stainless steel hook and chain. Options include festoon cable, cable reel, remote control.



 



9. IWCP, Ice Water Control Panel is needed for checking operation of ice water system. Other water cooling options may be available depending upon the size or type of operation. Please contact Cleveland Range LLC Cook Chill for assistance.



 



SUPPORT SYSTEM – MECHANICAL AREA



 



10. IBC-75, 7,500 pound Ice Builder holds cold water. Coils in the Ice Builder build up ice and keep the water icy cold. This ice water can be piped to the tumble chiller and cook tank for cooling bagged products. Ice water can also aid in kettle cold food production. Please contact Cleveland Range LLC Cook Chill for proper sizing of the ice builder and condensing unit.



 



11. T-100MB, air cooled condensing unit runs Freon through the coils in the Ice Builder



 



12. CAS-7.5, Compressed Air System is used to operate the air piston on the kettle, MFS, clipper, and vacuum clipper.



 



13. ADA-40, Air Dryer is required on CAS-7.5.



 



14. IBPP, Ice Builder Pump Package circulates ice water from the ice builder to the heat exchangers on the tumble chiller, kettles, and cook tank. Please note that this must be sized by a Mechanical Engineer due to differences in equipment and building layouts.



 



15. GFB-15, Gas Fired Boiler is used for creating steam for the kettle and TCCT-60. If other steam equipment is planned for the facility, it is recommended that boiler capacity be recalculated.